
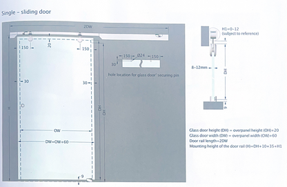
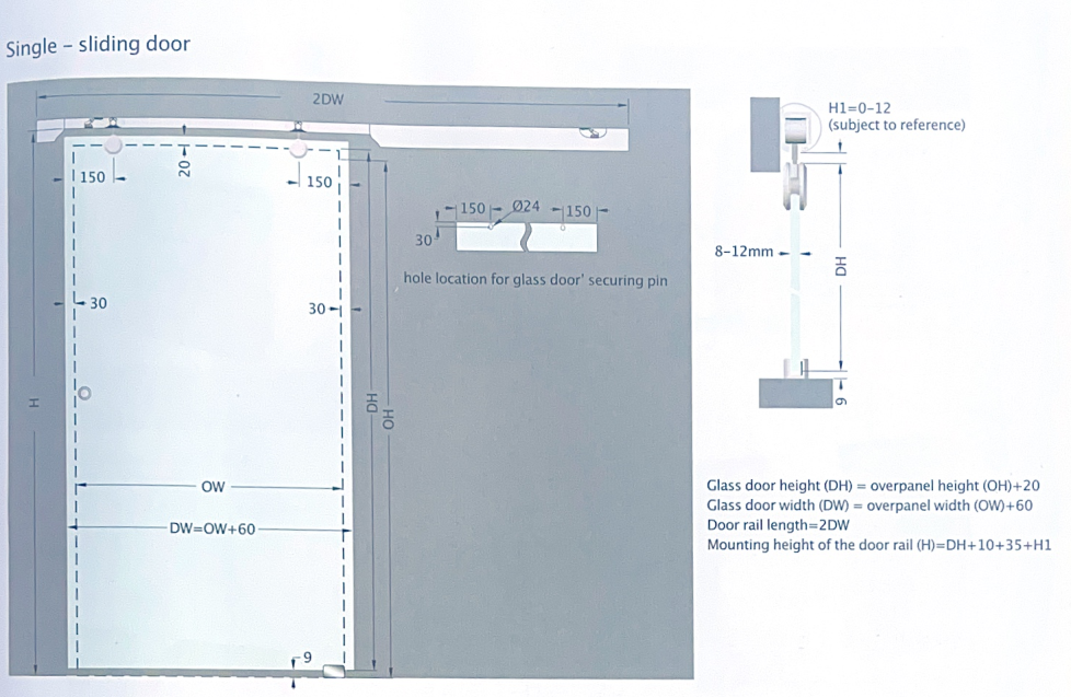
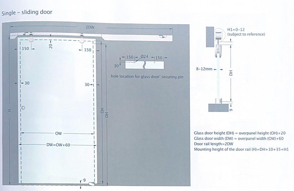
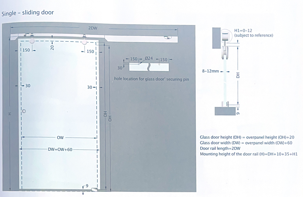
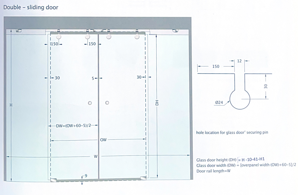
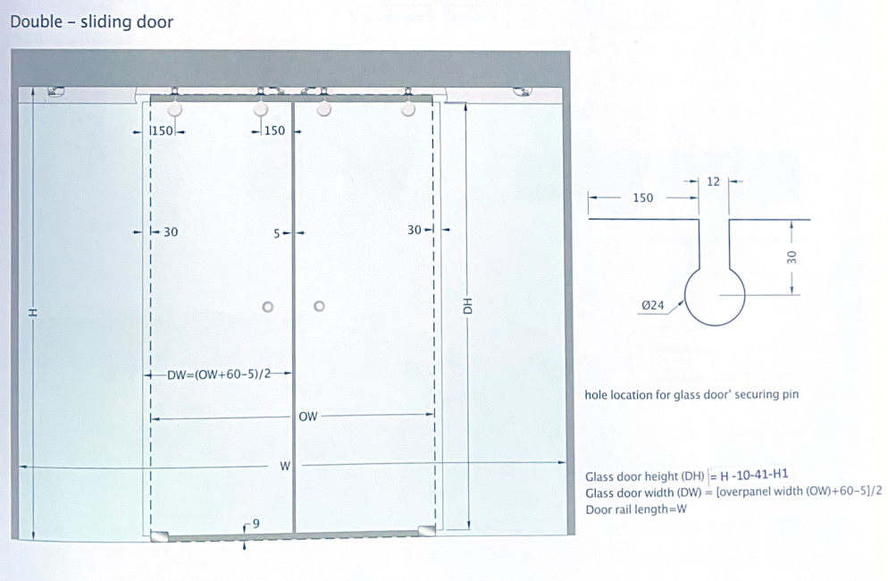
Pulley Sliding System | Satin Nickel | 8–12 mm Glass — High-quality sliding wheel set designed for glass doors and panels, providing smooth and reliable operation. Suitable for 8–12 mm glass thickness with a sleek polished chrome finish, ideal for shower enclosures and interior glass partitions.